Holzfenster aus eigener Produktion: Ein Stück Natur für Ihr Zuhause!

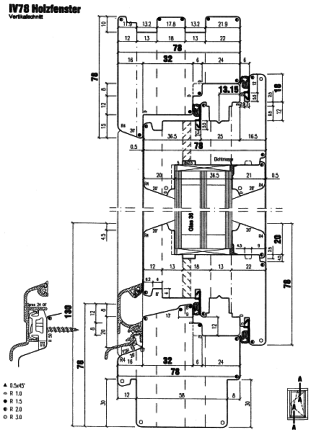
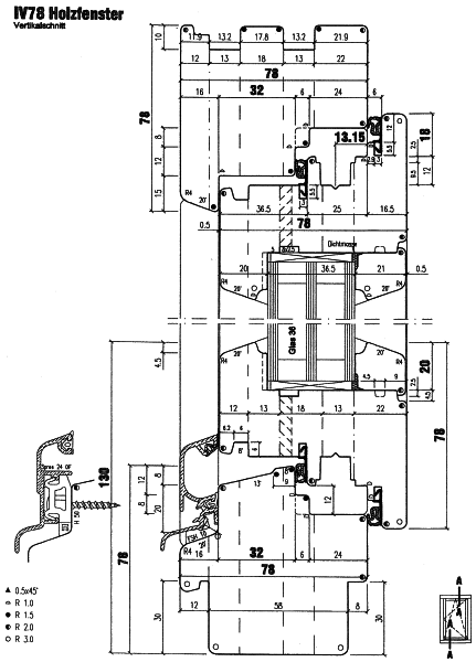
Holzfenster Profil IV 78 mm

 

Wir fertigen in Eigenproduktion Holzfenster im Profil IV 68 mm, im Profil IV 78 mm und sogar IV 90mm. Dabei verwenden wir für die Herstellung nur hochwertige Materialien von namhaften Herstellern, die genau wie wir wissen, dass nur hochwertig und sorgsam verarbeitete Erzeugnisse für ein langes und störungsfreies Produktleben garantieren können. 

 

Die Auswahl der zur verfügungstehenden Holzarten in Verbindung mit der Richtigen Oberflächenbehandlung sowie ein Konstruktiver Holzschutz sind entscheidend für die Haltbarkeit und Pflegeaufwand der Fenster. Wir beraten Sie gern und erklären Ihnen die Einteilung in verschiedene Bewitterungskategorien.

 

 

 

Historische Identität bewahren - Profil Rekonstruktion nach Maß

 

Jedes Fachwerkhaus und jedes Denkmal in unserer Region hat sein ganz eigenes Gesicht. Wenn die alten Fenster ihre Funktion verlieren, stehen Besitzer oft vor der Herausforderung: Wie vereint man moderne Technik mit den strengen Auflagen des Denkmalschutzes?
​Hier kommt unsere ID ins Spiel: Wir produzieren nicht nur Fenster, wir rekonstruieren Geschichte. In unserer Werkstatt in Hofgeismar fertigen wir im den Profilen IV 68 und IV 78 exakte Nachbildungen Ihrer historischen Fensterprofile an.
​Detailgetreuer Nachbau: Wir bilden historische Profile, Schlagleisten und Wetterschenkel eins zu eins nach.
​Individuelle Bekleidungen: Passgenaue Anfertigung von Zierprofilen und Bekleidungen nach Originalvorbild.
​Behörden-Service: Unsere fachgerechte Dokumentation und handwerkliche Ausführung erleichtern die Abstimmung mit der Denkmalpflege.
​Wir bringen die IDentität Ihres Hauses zurück – mit der Präzision moderner Fertigung und dem Herzschlag traditioneller Handwerkskunst.

 

Denkmalschutzfenster aus eigener Herstellung Denkmalschutzfenster aus eigener Herstellung

Vorteile die Holzfenster bieten:

Die Verwendung von Holzfenstern ist umweltfreundlich, Holz ist ein Naturprodukt und neben den weiteren ökologischen Vorteilen wie Nachhaltigkeit, Langlebigkeit und Energieeffizienz

sorgt Holz für ein gesundes Wohnklima, da Holz Luftfeuchtigkeit aufnehmen, speichern und wieder abgeben kann.

Ein weiterer wichtiger Grund ist die natürliche Oberflächenwärme und damit verbundene Behaglichkeit, die die Holzoberfläche bietet sowie die natürliche Farbgebung und wertvolle Ästhetik.

 

Ein weiterer Vorteil liegt in der Gestaltungsfreiheit die Holz erlaubt. Zahllose architektonische Gestaltungsmöglichkeiten lassen sich eben nur mit Holzfenstern verwirklichen! 

 

    

Umbau Balkon zum Wintergarten Umbau Balkon zum Wintergarten

Plege- und Wartungsanleitung für Holzfenster als Download

 

 

 

Sie haben Fragen?

Tischlerei Weidner
Schöneberger Strasse 17
34369 Hofgeismar

 

Telefon: 05671 2817

E-Mail: info@tischlerei-weidner.de

 

 

Aktuelles

Wir sind Fachbetrieb für barrierefreies Bauen und Wohnen

Wir sind Mitgliedsbetrieb

Druckversion | Sitemap
© 2007-2026 Tischlerei Weidner

Anrufen

E-Mail

Anfahrt